Поставка бетонных заводов стационарных, мини заводов (бюджет) производительностью от 7 до 60 м3 в час.Бетонных узлов,бетон но-растворных узлов
Мини-бетонный завод 10м3
Отличительные особенности:
- Скиповая подача инертных и цемента
- Производительность 10 куб. метров за час работы
- Для подготовки любых типов растворов и бетонов
- Простой монтаж и установка
- Небольшие габариты и масса
- Установленная мощность 10,5 кВт
- Широкий список дополнительных опций
- Гарантия 1 год
1 — бетоносмеситель с пневмозатвором и системой водопитания и водомером, 2 — скиповый подъемник с лебедкой, 3 — компрессор "Abac", 4 — подставка, 5 — Дозатор инертных скиповый ДИС, 6 — пульт управления, 7 — Дозатор воды ДВП-1000
| Объем по загрузке, литров | 450 |
| Объем готового замеса по бетону, л | 300 |
| Объем готового замеса по раствору, л | 360 |
| Производительность, куб. метров | 7…10 |
| Количество циклов за час, при использовании в автоматических линиях | 30 |
| Время перемешивания смеси, секунд | 90…180 |
| Крупность заполнителя не более, мм | 70 |
| Частота вращения валов, обмин | 40 |
| Напряжение питания, ВГц | 38050 |
| Мощность привода вращения, кВт | 7,5 |
| Затвор секторный, пневмоуправление | |
| Масса не более, кг | 2500 |
| Высота, мм | 4500 |
| Ширина, мм | 5850 |
| Длина, мм | 2500 |
Базовая комплектация:
- Одновальный бетоносмеситель со скиповым подъёмником
- Пневмозатвор "Camozzi" (Италия)
- Компрессор "ABAC" Pole Position L20P (Италия)
- Дозатор воды ДВП-1000 (дозирование 0-1000 л)
- Дозатор инертных ДИС. (скиповый). Тензодатчики "CAS" (Ю. Корея)
- Подставка для установки бетоносмесителя на высоте 3 метра
- Пульт управления ПР
- Паспорта на покупные изделия
- Паспорт на бетоносмеситель
Дополнительные опции:Эстакада увеличенная по высоте Дозирующий комплекс;Дозатор воды ДВТ-100;Дозатор цемента ДЦ-150;Шнековый питатель;Растариватель биг-бегов РБ-2;Силос цемента СЦ;Пульт управления ПР
Описание работы оборудования
Загрузка компонентов смеси производится в скип одновального бетоносмесителя . Скип поднимается на верх с помощью приводной лебедки и компоненты смеси высыпаются в смесительную камеру бетоносмесителя. Происходит перемешивание смеси. По мере необходимости, происходит подача воды, с помощью открытия кранового шара, необходимая доза отсчитывается по водомеру.
Готовая смесь подается через секторный затвор бетоносмесителя, который снабжен системой пневмоуправления. Управление работой РБУ происходит с пола, с помощью пульта управления.
Мини-бетонный завод 45м3
Отличительные особенности:
- Скиповая подача инертных и цемента
- Производительность 45 куб. метров за час работы
- Для подготовки любых типов растворов и бетонов
- Простой монтаж и установка
- Небольшие габариты и масса
- Установленная мощность 26 кВт
- Широкий список дополнительных опций
- Гарантия 1 год
1 — бетоносмеситель БП-2Г-1200с с пневмозатвором и системой водопитания и водомером, 2 — скиповый подъемник с лебедкой, 3 — компрессор "Abac", 4 — подставка, 5 — Дозатор инертных скиповый ДИС, 6 — пульт управления, 7 — Дозатор воды ДВП-1000
| Производительность, куб. метров | 35…45 |
| Режим работы ручной с пульта | |
| Дозатор инертных и цемента, погрешность + — % | 1 |
| Дозатор воды, погрешность + — % | 1 |
| Пневматика | Camozzi |
| Компрессор | Abac |
| Исполнение | летнее |
| Подача инертных и цемента | скиповая |
| Напряжение питания, ВГц | 38050 |
| Общая мощность, кВт | 26 |
| Затвор секторный, пневмоуправление | |
| Масса не более, кг | 4200 |
| Высота, мм | 5500 |
| Ширина, мм | 4900 |
| Длина, мм | 2000 |
Базовая комплектация:Двухвальный бетоносмеситель БП-2Г-1200с со скиповым подъёмником Дозатор воды проходного типа ДВП-1000 (дозирование 0-1000 л) Пневмозатвор "Camozzi" (Италия) Компрессор "ABAC" Pole Position L20P (Италия) Дозатор инертных ДИС. (скиповый). Тензодатчики "CAS" (Ю. Корея) Подставка для установки бетоносмесителя на высоте 3 метра Пульт управления ПР Паспорта на покупные изделия Паспорт на бетоносмеситель
Дополнительные опции:Подставка увеличенная по высоте Дозатор цемента ДЦ-300 (дозирование 0-300 кг) Шнековый питатель Силос цемента от 22 до 62 тонн Растариватель биг-бегов Пульт управления РБУ в автоматическом режиме Кабина оператора
Описание работы оборудования
Загрузка компонентов смеси (инертные и цемент) производится в скип двухвального бетоносмесителя. Под скипом установлена платформа дозатора инертых и цемента. Отсчет необходимой дозы ведется на табло пульта управления. По мере дозирование инертных и цемента, скип поднимается на верх с помощью приводной лебедки и компоненты смеси высыпаются в смесительную камеру бетоносмесителя. Происходит перемешивание смеси.
По мере необходимости, происходит подача воды, с помощью автоматического дозатора воды ДВП-1000, необходимая доза устанавливается на пульте управления.
Готовая смесь подается через секторный затвор бетоносмесителя, который снабжен системой пневмоуправления. Управление работой РБУ происходит с пола, с помощью пульта управления.
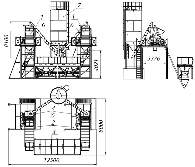
Бетонный завод 30м3 час(скип)
Отличительные особенности:
- Производительность РБУ: 30 куб. метров в час
- Двухвальный бетоносмеситель Полностью автоматическое управление РБУ
- Перевозка РБУ в 2-х еврофурах до места монтажа
- Оборудование сертифицировано, сертификат соответствия ГОСТ 27338-93 и ГОСТ 16349-85
1 — Двухвальный бетоносмеситель БП-2Г-750с со скипом, 2 — Эстакада, 3 — Дозирующий комплекс ДК-30 (2х15 куб.м), 4 — Дозатор воды ДВТ-200, 5 — Дозатор цемента ДЦ-300, 6 — Шнек (опция), 7 — Силос СЦ (опция), 8 — Пульт управления ПА (на схеме не указан)
| Производительность, куб. метров за час | 20…30 |
| Режим работы автоматический (с возможностью ручного управления) | |
| Бетоносмеситель БП-2Г-750с | |
| Бункера (кол-во х объем куб. м) | 2 х 15 |
| Объем силоса цемента, т (опция) | 22…62 |
| Пневматика | Camozzi |
| Компрессор | Abac |
| Исполнение | летнее |
| Подача инертных в бетоносмеситель | скиповая |
| Общая мощность, кВт | 38,2 |
| Затвор секторный, пневмоуправление | |
| Масса не более, кг | 10250 |
| Высота, мм | 7500 |
| Ширина, мм | 6000 |
| Длина, мм | 18000 |
Базовая комплектация:
Двухвальный бетоносмеситель БП-2Г-750с со скиповым подъемником, 2-х скоростной лебедкой Эстакада Э4-30 под автомиксер (h=4 метра) Дозирующий комплекс ДК-30: бункера инертных 2х15м3, пневматика "Camozzi" (Италия),конвейер-дозатор инертных. Дозирование 0-2000 кг. Тензодатчики "CAS" (Ю. Корея) Компрессор "ABAC" B6000 270 CT 7,5 (Италия) Дозатор воды ДВТ-200 (дозирование воды 200 л) Дозатор цемента ДЦ-300 (дозирование 0-300 кг) Пульт управления ПА (полностью автоматический режим работы, с возможностью работы в ручном режиме
- Комплект метизов, проводов, тросов и хомутов шнека для сборки и подключения завода
Дополнительные опции: Шнек "Wam" (Италия) d=219 мм., l=6000 мм. Силос цемента от 22 до 62 тонн вместимостью Дозирующий комплекс увеличенный. Общий объем до 45 м3 Дозатор хим. добавок ДХТ-20 (дозирование 20 л.) Кабина оператора (утеплённая)
Описание работы бетонного завода
Работа бетонного завода происходит в автоматическом режиме. Оператору необходимо только выбрать желаемый для работы рецепт и бетона и нажать кнопку пуск цикла.
Двухвальный бетоносмеситель установлен на эстакаде, на высоте разгрузки готовой смеси 4 метра. Бетоносмеситель оборудован специальным ковшом (скипом) для подъема и загрузки компонентов смеси внутрь бетоносмесителя. Скип имеет донный затвор, для уменьшения запыления и увеличения скорости разгрузки. Скип двухскоростной, разгруженный скип возвращается в исходное положение с двойной скоростью.
Для хранения и точного дозирования инертных предназначен дозирующий комплекс ДК-30. Возможна поставка бункеров увеличенного объема (до 45 куб. метров). Инертные загружаются и хранятся в бункерах, количество бункеров 2 по 15 куб. метра, общий объем бункеров 30 куб. метров. Под бункерами установлен ленточный конвейер-дозатор, на котором происходит точное дозирование компонентов, компоненты подаются из бункеров посредством открытия шиберных заслонок, заслонки управляются пневмосистемой "Camozzi"(Италия).
При наборе необходимой дозы инертных, включается конвейер и отдозированные компоненты подаются в скип (ковш) бетоносмесителя. Скип поднимается и подает компоненты в смесительную камеру бетоносмесителя.
Цемент хранится в силосе (опция). Силос для цемента необходимо изготовить на месте или подобрать бу вариант. Для подачи цемента из силоса в дозатор цемента необходимо приобрести шнек. С помощью шнека цемента подается в дозатор цемента (предел взвешивания 300 кг), в котором происходит дозация, по мере необходимости открывается заслонка и цемент подается в камеру бетоносмесителя.Вода подается непосредственно в бетоносмеситель с помощью дозатора воды .Происходит перемешивание всех компонентов смеси, после получения необходимой гомогенности смеси, открывается пневмозатвор "Camozzi" бетоносмесителя и смесь подается в автобетоновоз или приемный бункер. Далее цикл повторяется.За один цикл происходит изготовление 0,5…0,6 куб. метров готового бетона или раствора, цикл длится не более 60 секунд. Производительность установки 20…30 куб. метров готового бетона или раствора за час работы.









Отзывы
Отзывов пока нет.